BRUMANI | Zentrales, modernes Wohnen in Freiburg-Zähringen – Sanierte 2-Zimmer-Wohnung mit Balkon

Kaufpreis 177.000 €
Verkauft
Kauf

Eckdaten

Kaufpreis 177.000 €
Zimmer 2
Schlafzimmer 1
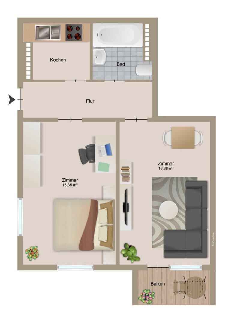
Wohnfläche ca. 47,62 m²

Objektbeschreibung

Diese hochwertig sanierte 2-Zimmer-Wohnung im 3. Obergeschoss eines im Jahr 1963 erbauten Mehrfamilienhauses überzeugt durch ihre moderne Ausstattung, einen funktionalen Grundriss sowie die zentrale Lage im beliebten Freiburger Stadtteil Zähringen. Die Wohnung ist vermietet und eignet sich somit hervorragend als Kapitalanlage mit solider Rendite oder zum Eigennutz.

Auf ca. 48 m² Wohnfläche bietet sie ein komfortables Wohnambiente mit stilvollen Ausstattungsdetails und zeitgemäßen Standards. Das helle Wohnzimmer verfügt über einen Balkon, der zum Entspannen im Freien einlädt. Das geräumige Schlafzimmer bietet ausreichend Platz für einen großen Kleiderschrank. Sowohl Wohn- als auch Schlafbereich sind mit einem hochwertigen Holzboden ausgestattet.

Die separate, voll ausgestattete Einbauküche bietet modernen Kochkomfort. Das Badezimmer ist funktional gestaltet und verfügt über einen Waschmaschinenanschluss direkt in der Wohnung. Darüber hinaus gibt es im Bad einen eigenen Wasserboiler. Das Treppenhaus wurde modernisiert und ist mit einem Personenaufzug ausgestattet, der den Zugang zur Wohnung bequem gestaltet. Fassade, Dach und Treppenhaus wurden erst im Jahr 2017 umfassend saniert, was langfristig zum Werterhalt der Immobilie beiträgt und für ein ansprechendes äußeres Erscheinungsbild sorgt.

Zusätzlichen Stauraum bietet ein zugeordneter Kellerraum. Zusätzlich stehen im Untergeschoss ein Wasch- und ein Trockenraum zur gemeinschaftlichen Nutzung zur Verfügung.
Beheizt wird die Wohnung über eine Gasheizung mit zentraler Versorgung aus dem Jahr 2017.

Die Höhe der Kaltmiete beträgt aktuell 730€. Das monatliche Hausgeld beläuft sich auf 222,28 €.
Diese Immobilie stellt eine attraktive Kapitalanlage in guter Lage dar und überzeugt durch ihre hochwertige Ausstattung, die solide Bausubstanz und eine attraktive Rendite.

Objektdaten

Ort
79108 Freiburg im Breisgau / Zähringen
Etage
3
Wohnfläche
ca. 47,62 m²
Anzahl Zimmer
2
Anzahl Schlafzimmer
1
Anzahl Badezimmer
1
Anzahl Balkon / Terrasse
1
Kaufpreis
177.000 €
Kaltmiete
730 €
Hausgeld
222,28 €
Käuferprovision
3,57% inkl. MwSt.Der Makler hat einen provisionspflichtigen Vertrag in gleicher Höhe abgeschlossen
Objektart
Wohnung
Nutzungsart
Wohnen
Verfügbarkeit
Verkauft
Vermarktungsart
Kauf
Zustand
Gepflegt
Verkaufstatus
Verkauft

Ausstattung

- Komplett sanierte Wohnung (inkl. Elektrik, Sanitär, Böden)
- Fassade, Dach und Treppenhaus 2017 saniert
- Helles Wohnzimmer mit Zugang zum Balkon
- Geräumiges Schlafzimmer mit Echtholzboden
- Hochwertiger Holzboden in Wohn- und Schlafbereichen
- Moderne Einbauküche (3.000 €, nicht im Kaufpreis enthalten)
- Balkon
- Waschmaschinenanschluss in der Wohnung
- Modernisiertes Treppenhaus
- Personenaufzug
- Badezimmer mit Badewanne
- Separater Kellerraum
- Gemeinschaftlicher Wasch- und Trockenraum im Untergeschoss
- Gaszentralheizung
- Doppelverglaste Fenster
- Attraktive Mietrendite oder Eigennutzen

Balkon
Personenaufzug

Karte

Google Maps

Mit dem Laden der Karte akzeptieren Sie die Datenschutzerklärung von Google.
Mehr erfahren

Karte laden

Energieausweis

Baujahr laut Energieausweis1963
Energieausweisliegt vor
Energie­ausweistypBedarfsausweis
Gültig bis19.10.2027
PrimärenergieträgerErdgas (leicht)
EnergieeffizienzklasseC
Endenergiebedarf87,20 kWh/(m²·a)
EnergieträgerGas
A+
A
B
C
D
E
F
G
H

Ähnliche Immobilien

Herr Piere Russo
Herr Piere Russo
Waldkircher Straße 12a
79106 Freiburg im Breisgau